Search

25 Oct 2025

Kilkenny city 5-bed home offers incredible value for the right buyer - click to view!

29 Hollybank Way, Clongowen, Kilkenny

5 beds - 3 baths -150m2

ASKING PRICE: €295,000

[CLICK 'NEXT>' ABOVE FOR NEXT PIC]

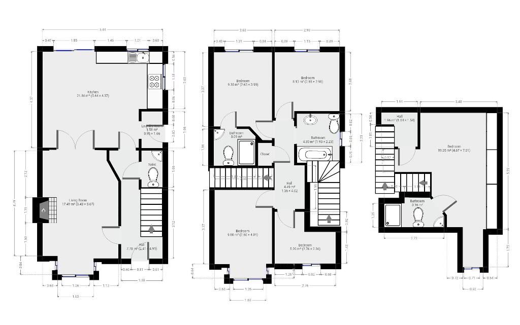
29 Hollybank Way is a 5-bedroom semi detached home situated in a quiet cul-de-sac in the popular development of Clongowen. 

Ideally located on the Waterford Road, it is walking distance to a host of schools, supermarkets, leisure centre, etc. 

Also walking distance of city centre and just off Kilkenny Ring Road with easy access to M9 motorway.

Accommodation briefly comprises:  Ground Floor - Hallway, Living Room, Kitchen/Dining, w.c. 

First Floor - 4 bedrooms (main ensuite) and bathroom.  Second Floor - large bedroom ensuite.

Gas central heating, front and rear gardens, driveway parking. 

The property is in need of redecoration.

Viewing by appointment. Contact REA Boyd's (Tel: 056 776 4833) to arrange!

To continue reading this article,
please subscribe and support local journalism!


Subscribing will allow you access to all of our premium content and archived articles.

Subscribe

To continue reading this article for FREE,
please kindly register and/or log in.


Registration is absolutely 100% FREE and will help us personalise your experience on our sites. You can also sign up to our carefully curated newsletter(s) to keep up to date with your latest local news!

Register / Login

Buy the e-paper of the Donegal Democrat, Donegal People's Press, Donegal Post and Inish Times here for instant access to Donegal's premier news titles.

Keep up with the latest news from Donegal with our daily newsletter featuring the most important stories of the day delivered to your inbox every evening at 5pm.